Ugrás a tartalomra
Országépítő
Építészet | Környezet | Társadalom
Menü
Hírek
Épületek
Nézőpont
Média
Vándoriskola
Könyvek
Előfizetés
Makovecz Vándoriskola
kezdőlap
iskola, mesterek
vándorok
felvételi, diploma
kirándulások, táborok
pályázatok
programok
kapcsolat
2006 - Kaláka Csíksomlyón
pályázatok
2002 - Budakalász főtér
2003 - Budakalász északi városkapu
2004 - Sashegy pavilonsor
Pályaművek
Bírálat, zárójelentés
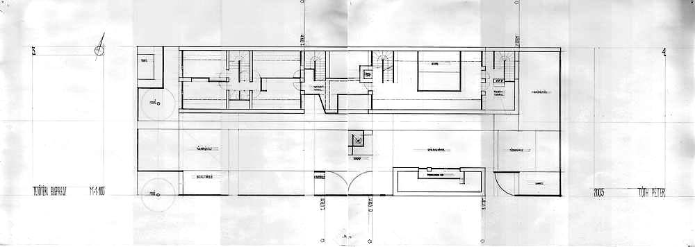
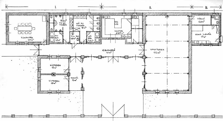
2005 - Budakalász, Ifjúsági ökoház
I. forduló
I. forduló - Zsűri jelentés
II. forduló
Vázlatterv
2006 - Forrás a csíksomlyói hegynél
2006 - Kállósemjén, Újfaluréti kápolna
A megvalosult kápolna Kállósemjénben
2006 - Leányfalu, fára épített ház
2007 - Második forduló
2008 - Wekerle telep, piac
Pályázati értékelés, zárójelentés
Pályaművek, Wekerle telep piac pályázat
2009 - Mindszentkálla, Geopark
Pályaművek, Mindszentkálla Geopark pályázat
Zárójelentés
2010 - Pécs EKF pályázat
KKE Vándoriskola
friss tartalom
Felvételi felhívás és kiírás - 2019
Vándorból mester - interjú Sziklai Ákos építésszel az Országépítőben
Vándorból mester - interjú Tóth Péter építésszel az Országépítőben
Vándorból mester - interjú Kovács Gábor építésszel az Országépítőben
Vándorból mester - interjú Bártfai Szabó Orsolya és Gábor építészekkel az Országépítőben
Vándorból mester - interjú Erhardt Gábor építésszel az Országépítőben
Felvételi felhívás és kiírás - 2017
Vándorból mester - interjú Kuli László építésszel az Országépítőben
Vándorból mester - interjú Engelmann Tamás építésszel az Országépítőben
Vándorból mester - interjú Kelf Treuner építésszel az Országépítőben
I. forduló
Jelenlegi hely
Címlap
»
pályázatok
»
2005 - Budakalász, Ifjúsági ökoház
Hegedűs Alice
Kováts Ábel és Terdik Bálint
Nagy Lívia és Balogh Miklós
Őrfi József
Papp Dávid Béla
Tóth Péter
Ujj Mészáros Krisztina
Minden jog fenntartva ©
Kós Károly Egyesülés
, 2007-2022 | Az oldalt karbantartja:
webtervezes.com